
生產效率低:產品種類多,客戶要求高,訂單張數多,訂單數量少,產線換線頻繁,新員工多等因素影響效率生產下降
管理效果差:缺乏實時信息數據,管理滯后,生產標準不統一,操作不規范,影響管理效果。
生產周期長:整批次產品生產可能導致時效性損失,如產品損壞和市場變動。
人力浪費:批量化過程中搬運多,等待時間長,空間浪費大。
生產過程僵化:問題集中,難以細化解決,不利于培養員工多技能。
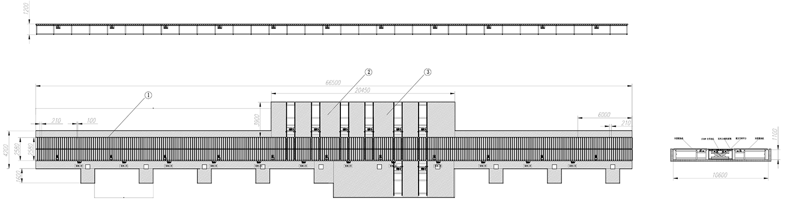
設備構成:
1、A-小螺桿組裝生產線
2、B-55/90機組裝生產線
3、C-大型機組裝生產線
4、D-無油機組裝生產線
減少浪費和錯誤:生產線的設計使得每個環節的工作精細而獨立,減少了浪費和由于人為因素引起的誤差,從而降低成本。
保證產品質量和一致性:生產線的高精度設備可以準確地執行生產過程,確保產品的質量和一致性。
流水線上各工序之間的生產能力是平衡的,成比例的
整體生產效率提升25%,質量異常下降50%




您在使用“寧波迪泰自動化設備有限公司”網站的在線留言功能時,您可能會留下個人聯系方式。我們深知個人信息對您的重要性,因此我們非常重視保護您的隱私和個人信息,我們會將本隱私協議中的內容以高度審慎的義務對待和處理,并將恪守以下原則,保護您的個人信息:權責一致原則、目的明確原則、選擇同意原則、最少夠用原則、公開透明原則、確保安全原則、主體參與原則、公開透明原則等。我們將按照法律法規的規定并參照行業最佳實踐保護您的個人信息及隱私安全。
我們會遵循隱私政策收集、使用您的信息。
我們嚴格遵守法律法規,遵循以下隱私保護原則,為您提供安全、可靠的服務:
(a)安全可靠
我們通過合理有效的信息安全技術及管理制度,保證您的信息安全無虞,防止您的信息泄露或者被篡改。
(b)自主自愿
我們為您提供便利的信息管理選項,以便您做出自己的選擇,保護您的個人信息。
(c)合理必要
我們嚴格遵照《中華人民共和國網絡安全法》及相關法律法規的規定,僅向您收集必要的有限信息,與我們的服務無關的信息我們禁止收集。
(d)清晰透明
我們努力使用簡明易懂的表述,向您介紹我們的隱私政策,以便您輕松掌握我們的信息處理全過程。